Our Services Seniors Living Master Planning Interior Design Residential and Mixed Use

Join our team Contact Services About Life3A Seniors living News Sustainability Connect with us

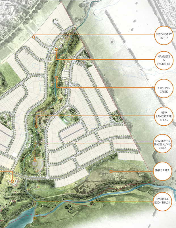
Our services Successful master plans encompass 3 main components and when considered together, these will provide a powerful basis for a successful development of the site and enable exciting outcomes to be realised. Master Planning

1. Strategic Analysis:
- Vision and aspirations
- Stakeholder engagement and consultation
- Opportunities and constraints
- Key issues and considerations
- User needs and requirements

2. Space Planning:
- Access and movement
- Orientation, size and location of key built elements
- Open space
- Connections
- Critical adjacencies and interrelationships
- Connections beyond the site boundary

3. Implementation Plan:
- Staging and sequencing of works
- Site logistics including decanting of existing facilities, temporary works, limiting disruption to existing services
- Assistance with financial analysis and cost
- Planning
Our Services

aveo shortland waters
newcastle, australia
housing estate
sydney, australia
avoca beach land lease estate
gosford, australia
sutherland park
burradoo, australia
cumberland country golf club
sydney, australia
waterbrook bowral
bowral, australia
chevron_left chevron_right Master Planning Projects See all master planning projects  

seniors living
later living quality
Aged Care
Improving quality of life
Master Planning
Creating a sense of place
Interior Design
Experienced in design

Copyright Life3A | 2025 Locations
Madrid     Berlin     Kuala Lumpur     Sydney     Brisbane     Melbourne   Adelaide     New Zealand
Connect with us Get in touch today About us Our services Projects News Ethics & sustainability Contact